名古屋・春日井周辺エリアの不動産情報
(受付時間/10:00~19:00 定休日/火曜日、水曜日)
会員ログイン
※複数選択できます。Windows:[Ctrl]+クリック/Mac:[Command]+クリック
※サービスルーム(S)は、全ての検索条件に含まれます。
検索条件をクリアする
7件 (会員登録で+22件)
さらに来店すると+108件の物件が見れます!
無料会員登録はこちら
ご来店予約はこちら
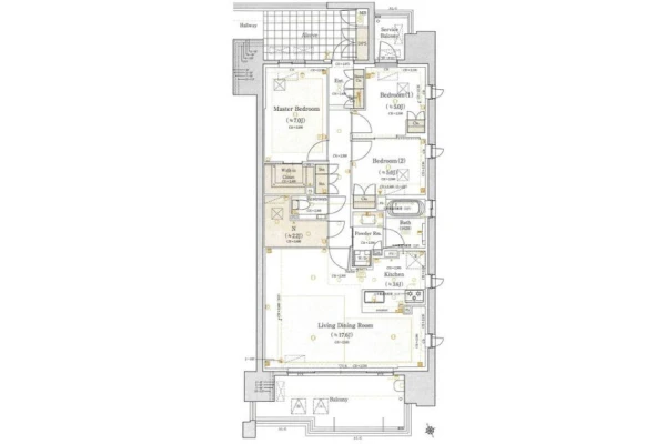
この物件をご覧頂くには、会員登録(無料)が必要です。
登録日:2026/4/11
ホームページ上で公開されていない、店舗でのみ閲覧できる物件があります!!
来店限定物件108件大公開!
来店予約はこちら
登録日:2026/3/27
登録日:2026/3/18
登録日:2026/1/19